Please choose your delivery location

The selection of the country/region page can influence various factors such as price, shipping options and product availability.
Inquiry / Contact
igus® Canada

180 Bass Pro Mills Drive

Concord

Ontario L4K 0G9

+1 (800) 965-2496
+1 905 760-8688
CA(EN)

Configurator for drylin® T – Heavy Duty

Ordering a complete system

Configuration in just a few steps:

1. Choose the number of carriages
2. Choose the type of carriage
3. Enter the carriage length in mm
4. Choose the carriage options
5. Choose the rail options

Note:

You can find detailed information in the drawings below and also on the pages listed below. You can find more precise information on the floating bearing types within the construction rules.
 
A:Version with floating bearing in z-direction
B:Horizontal version with floating bearing in z-direction
C:Horizontal version with guide carriages at the side and floating bearing in the y-direction
1

Rail

2

Slide elements

3

Carriage with fixed bearings

4

Carriage with floating bearings LLZ or LLY

Floating bearing application

drylin® TK-02 – complete system

Step 1

Select the installation size of the guide carriage.

Installation size of the guide carriage:
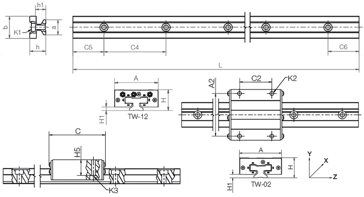
drylin® T System Heavy Duty drawing

Dimensions and technical data


Guide rails
 
Part No. Weight
[kg/m]
L
max.
a
-0,2
C4 C5
min.
C5
max.
C6
min.
C6
max.
h h1 K1 for screw
DIN 912
b ly
[mm4]
lz
[mm4]
Wby
[mm4]
Wbz
[mm4]
TS-01-15 0,6 4.000 15 60 20 49,5 20 49,5 15,5 10 M4 22 6.440 4.290 585 488
TS-01-20 1 4.000 20 60 20 49,5 20 49,5 19 12,3 M5 31 22.570 11.520 1.456 1.067
TS-11-20   4.000 20 120 20 79,5 20 79,5 19 12,3 M5 31 12.140 6.360 780 620
TS-01-25   4.000 23 60 20 49,5 20 49,5 21,5 13,8 M6 34 34.700 19.300 2.041 1.608
TS-01-30   4.000 28 80 20 59,5 20 59,5 26 15,8 M8 40 70.040 40.780 3.502 2.832
Standard hole pattern symmetrical C5: C6
 
Guide carriage Heavy Duty
 
Part No. Weight
[kg]
H
±0,35
H5 A C A2 C2 H1
±0,35
K2 K3
TW-02-20 0,19 30 19,8 63 70 53 40 5,0 M6 M5
TW-02-25 0,29 36 24,8 70 77 57 45 5,0 M8 M6
TW-02-30 0,50 42 27,0 90 92 72 52 6,5 M10 M8

with clearance adjustment
 
Part No. Weight
[kg]
H
±0,35
H5 A C A2 C2 H1
±0,35
K2 K3
TW-12-20 0,19 30 19,8 63 72 53 40 5,0 M6 M5


The terms "igus", "Apiro", "chainflex", "CFRIP", "conprotect", "CTD", "drylin", "dry-tech", "dryspin", "easy chain", "e-chain", "e-chain systems", "e-ketten", "e-kettensysteme", "e-skin", "e-spool", "flizz", "ibow", "igear", "iglidur", "igubal", "kineKIT", "manus", "motion plastics", "pikchain", "plastics for longer life", "readychain", "readycable", "ReBeL", "speedigus", "triflex", "robolink", "xirodur", and "xiros" are legally protected trademarks of the igus® SE & Co. KG/ Cologne in the Federal Republic of Germany and where applicable in some foreign countries.

igus® SE & Co. KG points out that it does not sell any products of the companies Allen Bradley, B&R, Baumüller, Beckhoff, Lahr, Control Techniques, Danaher Motion, ELAU, FAGOR, FANUC, Festo, Heidenhain, Jetter, Lenze, LinMot, LTi DRiVES, Mitsibushi, NUM,Parker, Bosch Rexroth, SEW, Siemens, Stöber and all other drive manufacturers mention in this website. The products offered by igus® are those of igus® SE & Co. KG